TOSHIBA

XM-2402B

Device Type

Internal CD-ROM

Interface

ATAPI

Spin Rate (Read/Write)

10x

Formats Supported Read

CD-XA, CD-G, CD-I, CD-I Ready, CD-ROM (Mode 1 & Mode 2), Photo-CD, Video CD, Red & Yellow Book, CD-E

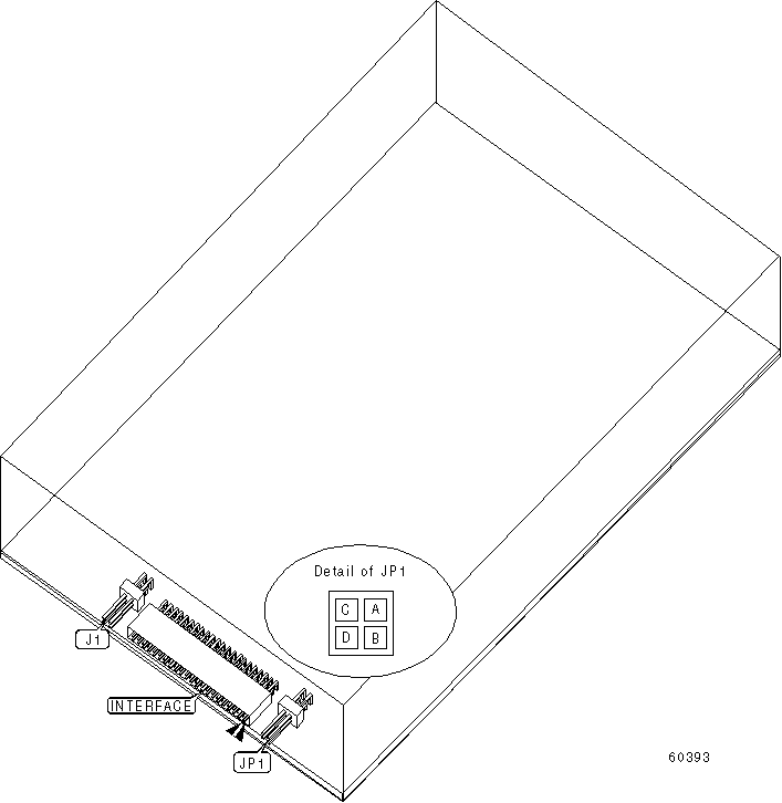
View

Top

CONNECTIONS

Function

Label

Digital audio out

J1

ATAPI MASTER/SLAVE

Setting

JP1

Master in two drive system

Open

Slave in two drive system

Pins C & D closed

MISCELLANEOUS TECHNICAL NOTES

Drive was designed to be installed in a laptop.