MITSUBISHI ELECTRONICS

MP3300

Processor

80386SX

Processor Speed

16MHz

Chip Set

None

Max. Onboard DRAM

1MB (location unknown)

Cache

None

BIOS

Mitsubishi/Phoenix

Dimensions

330mm x 218mm

I/O Options

32-bit external memory slot, floppy drive interface,

parallel port, serial port (2)

NPU Options

80387SX

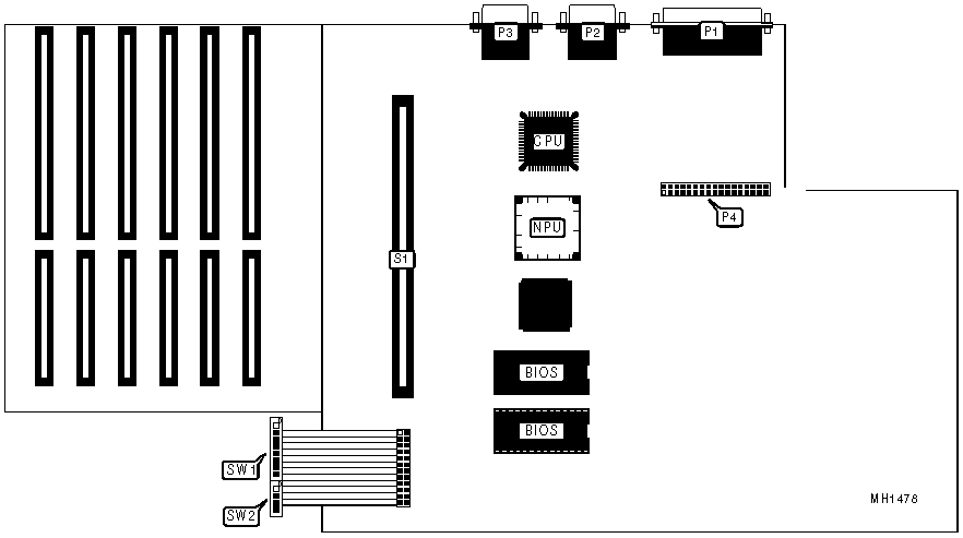
CONNECTIONS

Purpose

Location

Purpose

Location

Parallel port

P1

Floppy drive interface

P4

Serial port (COM1)

P2

32-bit external memory slot

S1

Serial port (COM2)

P3

   

USER CONFIGURABLE SETTINGS

Function

Switch

Position

»

Floppy interface enabled

SW1/switch 1

off

 

Floppy interface disabled

SW1/switch 1

on

»

Factory configured - do not alter

SW1/switch 2

off

»

Factory configured - do not alter

SW1/switch 4

off

»

I/O bus speed select ATCLK/8

SW1/switch 6

on

 

I/O bus speed select ATCLK/6

SW1/switch 6

off

»

Keyboard select enhanced enabled

SW1/switch 7

on

 

Keyboard select enhanced disabled

SW1/switch 7

off

»

Monitor type select monochrome

SW1/switch 8

off

 

Monitor type select color

SW1/switch 8

on

MEMORY MODE CONFIGURATION

Mode

Size

SW1/switch 3

SW1/switch 5

 

A

512KB (base)

Off

On

»

C

640KB (base)

Off

Off

 

D

512KB (external)

On

Off

SERIAL PORT CONFIGURATION

COM

SW2/switch 1

SW2/Switch 2

»

COM1

Off

On

 

COM2

Off

Off

 

Disabled

On

On

PARALLEL PORT CONFIGURATION

LPT

SW2/switch 3

SW2/Switch 4

»

LPT1

Off

Off

 

LPT2

Off

On

 

LPT3

On

Off

 

Disabled

On

On

DRAM CONFIGURATION

Base Address

SW1

SW2

SW3

SW4

SW5

SW6

SW6

SW7

1M

on

on

on

on

off

on

off

off

1.5M

on

on

on

on

off

off

off

off

2M

on

on

on

off

on

on

off

off

2.5M

on

on

on

off

on

off

off

off

3M

on

on

on

off

off

on

off

off

3.5M

on

on

on

off

off

off

off

off

4M

on

on

off

on

on

on

off

off

4.5M

on

on

off

on

on

off

off

off

5M

on

on

off

on

off

on

off

off

5.5M

on

on

off

on

off

off

off

off

6M

on

on

off

off

on

on

off

off

6.5M

on

on

off

off

on

off

off

off

Note: Memory expansion board is 4MB.