INTEL CORPORATION

RU430HX

Processor

Pentium

Processor Speed

75/90/100/120/133/150/166/180/200MHz

Chip Set

Intel

Video Chip Set

S3

Maximum Onboard Memory

128MB (EDO supported)

Maximum Video Memory

2MB

Cache

256/512KB

BIOS

AMI

Dimensions

229mm x 219mm

I/O Options

CD-ROM connector, floppy drive interface, green PC connector, IDE interfaces (2), parallel port, PS/2 mouse port, serial ports (2), VESA feature connector, VGA port, riser slot, IR connectors (2), serial port/USB connector, microphone in connector, line out connector, MIDI/audio input connector, wave table connector, telephony connector

NPU Options

None

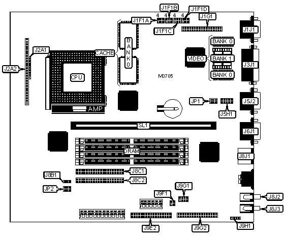
CONNECTIONS

Purpose

Location

Purpose

Location

VESA feature connector

J1G1

Serial port/USB connector

J5J2

VGA port

J1J1

Serial port 1

J6J1

IDE interface LED

J2A1 pins 1 & 2

Soft off connector

J8B1

Reset switch

J2A1 pins 3 & 4

IDE interface 2

J8C1

IR connector

J2A1 pins 6 - 9

IDE interface 1

J8C2

Chassis fan power

J2A2 pins 1 & 2

PS/2 mouse port

J8J1

Reset switch

J2A2 pins 4 & 5

Microphone in connector

J8J2

Power LED & keylock

J2A2 pins 7 - 10

Line out connector

J8J3

IDE interface LED

J2A2 pins 11 - 14

Floppy drive interface

J9E2

Soft on power connector

J2A2 pins 15 & 16

Telephony connector

J9F1

Green PC connector

J2A2 pins 17 & 18

Wave table connector

J9G1

IR connector

J2A2 pins 20 - 25

MIDI/audio input connector

J9G2

Speaker

J2A2 pins 26 - 29

CD-ROM connector

J9H1

Parallel port

J3J1

Riser slot

SL1

Serial port 2

J5H1

   

USER CONFIGURABLE SETTINGS

Function

Label

Position

»

Password normal operation

J1F1A

Pins 1 & 2 closed

 

Password clear

J1F1A

Pins 2 & 3 closed

»

CMOS memory normal operation

J1F1A

Pins 4 & 5 closed

 

CMOS memory clear

J1F1A

Pins 5 & 6 closed

»

Setup access enabled

J1F1B

Pins 1 & 2 closed

 

Setup access disabled

J1F1B

Pins 2 & 3 closed

»

Factory configured - do not alter

JP1

Unidentified

»

Factory configured - do not alter

JP2

Unidentified

DRAM CONFIGURATION

Size

Bank 0

Bank 1

8MB

(2) 1M x 36

None

16MB

(2) 2M x 36

None

16MB

(2) 1M x 36

(2) 1M x 36

24MB

(2) 2M x 36

(2) 1M x 36

32MB

(2) 4M x 36

None

32MB

(2) 2M x 36

(2) 2M x 36

40MB

(2) 4M x 36

(2) 1M x 36

48MB

(2) 4M x 36

(2) 2M x 36

DRAM CONFIGURATION (CON’T)

Size

Bank 0

Bank 1

64MB

(2) 8M x 36

None

64MB

(2) 4M x 36

(2) 4M x 36

72MB

(2) 8M x 36

(2) 1M x 36

80MB

(2) 8M x 36

(2) 2M x 36

96MB

(2) 8M x 36

(2) 4M x 36

128MB

(2) 8M x 36

(2) 8M x 36

Note: Board accepts EDO memory. Board also accepts x 32 SIMMs. The location of banks 0 & 1 are unidentified.

CACHE CONFIGURATION

Size

Bank 0

256KB

(2) 32K x 32

512KB

(2) 64K x 32

Note: Board will come factory installed with one of the two above cache sizes.

VIDEO MEMORY CONFIGURATION

Size

Bank 0

Bank 1

1MB

1MB

None

2MB

1MB

(2) 256K x 16

Note: Bank 0 is factory installed and is not configurable.

CPU SPEED SELECTION

CPU speed

Clock speed

Multiplier

J1F1C

J1F1D

75MHz

50MHz

1.5x

2 & 3, 5 & 6

1 & 2, 4 & 5

90MHz

60MHz

1.5x

2 & 3, 5 & 6

1 & 2, 4 & 5

100MHz

66MHz

1.5x

1 & 2, 5 & 6

1 & 2, 4 & 5

120MHz

60MHz

2x

2 & 3, 4 & 5

2 & 3, 4 & 5

133MHz

66MHz

2x

1 & 2, 5 & 6

2 & 3, 4 & 5

150MHz

60MHz

2.5x

2 & 3, 4 & 5

2 & 3, 5 & 6

166MHz

66MHz

2.5x

1 & 2, 5 & 6

2 & 3, 5 & 6

180MHz

60MHz

3x

2 & 3, 4 & 5

1 & 2, 5 & 6

200MHz

66MHz

3x

1 & 2, 5 & 6

1 & 2, 5 & 6

Note: Pins designated should be in the closed position.

CPU TYPE SELECTION

Type

J1F1B

Standard or VR

Pins 4 & 5 closed

VRE

Pins 5 & 6 closed